Woodfield Road, Ealing, W5





Key features
- Two double bedrooms
- Newly completed re-development
- Two bath/shower rooms
- Top floor apartment
- Double glazed windows
- Gas central heating
- vacant possession and no upper chain
- EPC rating: C
Property details
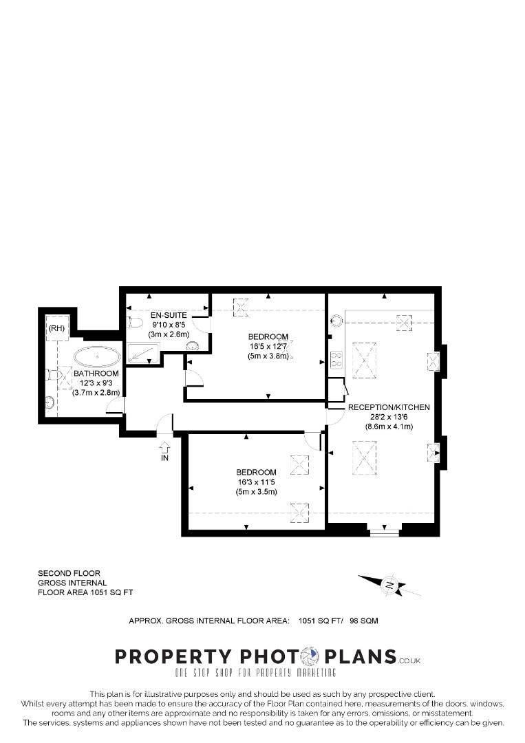
Boasting 1050 SQFT of newly completed space and finished to an exceptional standard throughout is this two double bedroom top floor apartment.
Located between the popular Pittshanger High Street and Ealing Broadway this property is within the catchment of some of West Londons most sought after schools. Within minutes walk there are parks and sports fields plus the vibrant Pitshanger Lane with its independent shops and cafes/bistros. A little further and you have the convenience of Ealing Broadway with its multiple transport and shopping facilities which include the newly opened Elizabeth Line.
Contact Rolfe East Ealing Sales today...










