Creffield Road, Ealing, W5





Key features
- Rare Development Opportunity!
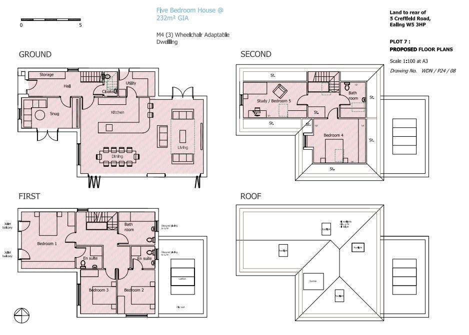
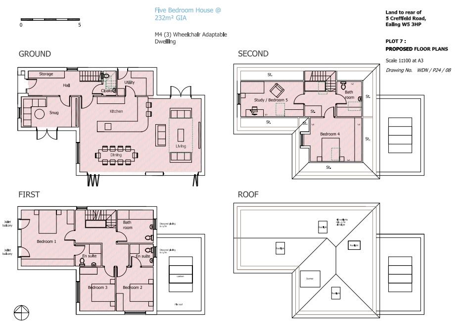
- Planning Approved for 7 Residential Units
- Prime Location
- Land to Rear of 5 Creffield Road
Property details
A very rare opportunity to acquire land for a new gated residential development with planning for seven houses situated in a thriving community in Ealing Common close to excellent transport links including various bus routes, and Ealing Broadway station which is a major single level interchange station served by London Underground, the Elizabeth line, and Great Western Mainline (GWR).
Ealing, known as the ‘Queen of the Suburbs’ since Victorian times when it was a semi-rural retreat for wealthy Londoners, still maintains that mix of busy city life and green spaces to relax, making it an excellent destination for visitors exploring the local community, shopping, and enjoying a great meal.
The planning is as follows: construction of 7 two stories with habitable loft space, dwelling houses with associated parking, cycle storage and refuse storage provision. This is a ready to go opportunity, with all plans and permissions granted, and potential to improve on the current approved plans.
Please do call Rolfe East on 020 8579 4080 for more information. Viewings are strictly by appointment only.
Contact Rolfe East Ealing Sales today...





