Stanhope Park Road, Greenford, UB6





Key features
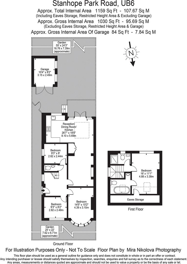
- Chalet Style Bunglaow
- Four Bedrooms
- Garage
- Private Garden
- Close to Ravenor Park
Property details
FOUR BED CHALET STYLE BUNGALOW! This beautifully presented bungalow has been tastefully extended by its current owners. It has four well proportioned bedrooms, two bathrooms including one en-suite to the master bedroom as well as a ground floor W.C. The living space has been optimised with a tastefully designed family room including a open modern kitchen to the rear and the versatile arrangements of the accommodation means bedrooms and living space can be inter-changeable. The garden space offers a decked patio leading on to a well maintained lawn. The property is ideally located by all the local amenities of Greenford and well serviced by local bus routes. The location and design makes this an ideal property for a family or some looking for a well laid out bungalow.
Contact Rolfe East Northfields Sales today...










