First Avenue, Acton, W3

£899,950
3
1
2
Floor planEPCBrochure

Key features

  • Ideal cash buyer development project
  • Full Planning Permission for 4 Flats
  • Stamp Duty Covered
  • Prime Location
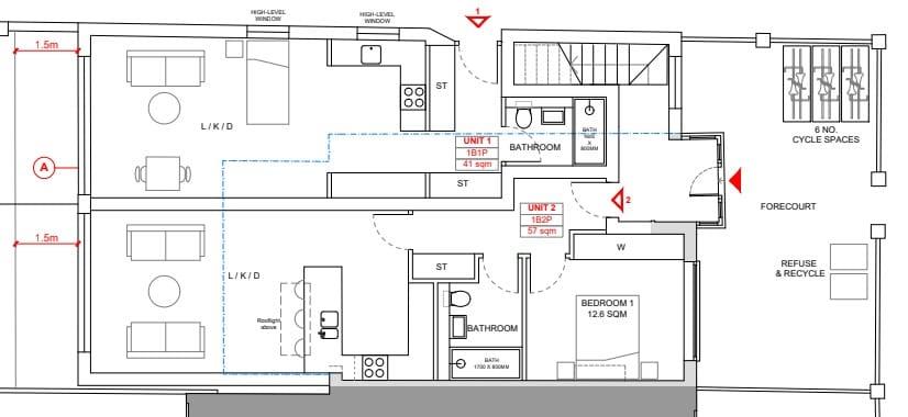
  • Unit 1 – Studio flat (41 sqm)
  • Unit 2 – 1-bedroom flat (51 sqm)
  • Unit 3 – 2-bedroom flat (67 sqm)
  • Unit 4 – Studio flat (40 sqm)
  • Offered chain free
  • Close to Westfield Shopping Centre, Askew Road, and Churchfield Road

Property details

Fantastic Development Opportunity – CASH BUYERS ONLY!
A rare opportunity to acquire this semi-detached family home in a highly sought-after residential area of Acton, offered with stamp duty paid and full planning permission to convert into four self-contained residential flats.

Unit 1: Studio flat – 41 sqm
Unit 2: 1-bedroom flat – 51 sqm
Unit 3: 2-bedroom flat – 67 sqm
Unit 4: Studio flat – 40 sqm

Ideally positioned within walking distance of East Acton Underground Station (Central Line) and Acton Central (Overground), this property offers superb connectivity across London. The area also benefits from excellent local schools, expansive green open spaces, and close proximity to Westfield Shopping Centre and the vibrant Askew Road and Churchfield Road, known for their artisan bakeries, boutique cafés, and gastro-pubs.

With easy access to the A40, providing routes into Central London and Heathrow Airport, this property represents an exceptional investment or development opportunity in a prime West London location.
Offered chain free!

Share this property
Interested in this property?
Contact Rolfe East Acton Sales today...
James Williams
James Williams
Acton Sales
020 8993 7755Email us66 High Street, Acton, W3 6LE
Request a viewing

Hawke Financial Services

Use the map above to explore the neighbourhood around First Avenue, Acton, W3

Latest properties for sale

SSTC

Creffield Road, Ealing, W5

£5,250,000

0
0
0
A very rare opportunity to acquire land for a new gated residential development with planning for seven houses situated in a thriving community in Ealing Common close to excellent transport links including various bus routes, and Ealing Broadway station which is a major single level interchange station served by London…...
View Creffield Road, Ealing, W5
Sold

Sandford Orcas, DT9

£3,000,000

16
8
8
NO FURTHER CHAIN. MORE LAND AVAILABLE TO PURCHASE IF REQUIRED. A breath-taking, historic Grade I listed manor house dating back to C.1550 with ancillary accommodation, stables and range of outbuildings extending to 14,112 square feet. This amazing, historic home is set within about 12 acres of north Dorset countryside close…...
View Sandford Orcas, DT9
For Sale

The Grove, Ealing, W5

Offers In Excess Of £2,000,000

4
1
4
A substantial semi detached period home with bright and spacious accommodation arranged over four floors and boasting an 80ft rear garden and off street parking for up to two cars. The property is being offered for sale with no upper chain and enjoys a convenient location on a popular residential…...
View The Grove, Ealing, W5
For Sale

Gore Road, Burnham, SL1

£1,999,999

0
0
0
Being sold via Secure Sale online bidding. Terms & Conditions apply. Starting Bid £1,999,999This property will be legally prepared enabling any interested buyer to secure the property immediately once their bid/offer has been accepted. Ultimately a transparent process which provides speed, security and certainty for all parties.A commercial & industrial…...
View Gore Road, Burnham, SL1
For Sale

Gore Road, Burnham, SL1

£1,999,999

0
0
0
Being sold via Secure Sale online bidding. Terms & Conditions apply. Starting Bid £1,999,999This property will be legally prepared enabling any interested buyer to secure the property immediately once their bid/offer has been accepted. Ultimately a transparent process which provides speed, security and certainty for all parties.A commercial & industrial…...
View Gore Road, Burnham, SL1

Arrange a viewing

Call our branch today on 020 8993 7755 or use the form below to request a viewing of this property.

We use cookies on this website. You are free to manage cookie settings via your browser at any time. To learn more about how (and why) we use cookies, please take a look at our Privacy Policy.

Ok, got it!