Ferrymead Avenue, Greenford, UB6





Key features
- Two large detached bungalows for sale by auction
- Being sold via ‘Secure Sale’
- Immediate ‘exchange of contracts’ available
- 1 x 4 bed detached & 1 x 3 bed detached
- Circa 4500 sqft of accommodation
- Superb Investment opportunity
- Freehold
- Must be viewed
Property details
Being Sold via Secure Sale online bidding. Terms & Conditions apply. Starting Bid £750,000
A fantastic and unique opportunity to buy TWO spacious detached bungalows on a large plot of land, under the same freehold, making this an ideal investment opportunity or for large/growing families. The bungalows are both spacious, and well designed and could lend to further extension potential (subject to gaining consents) and has had previous consents for apartments. Ferrymead Avenue is located in this sought after Greenford neighbourhood, and is within easy reach of Greenford Broadway, excellent transport links and well-regarded local schools.
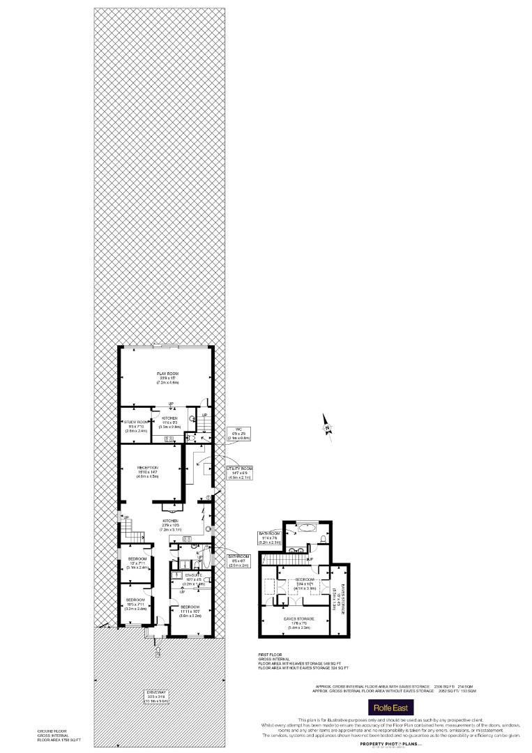
Front Bungalow.
Accommodation comprises four bedrooms, one with an en-suite, a fully fitted modern open-plan kitchen, a separate utility room with side access to the garden, a spacious lounge, family bathroom to the ground floor. To the first floor, a double bedroom with an en-suite & walk-in wardrobe. The bungalow has a driveway which can fit up to 3 cars. It has a extension at the back which can be used as a conservatory, office etc. This property is furnished with modern high-spec throughout.
Rear Bungalow:
This property has 3 double bedrooms, one with en-suite, a family bathroom and a separate WC. To the basement, it has a large living room with a mezzanine, an open-plan kitchen with a dining area and a separate utility room located next to the kitchen. This property is furnished with modern high-spec throughout.
Contact Rolfe East Northfields Sales today...









