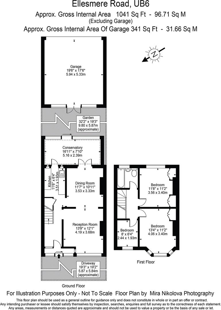
Ellesmere Road, Greenford, UB6





Key features
- Off street parking
- Huge garden room
- Beautiful Back Garden
- Close to Schools
- Well presented family home
- Three bedrooms
- Conservatory
- Must be viewed
Property details
A beautifully presented three bedroom family home, situated on this peaceful residential street just moments from the shops and cafes of Greenford Broadway.
This lovely family home offers excellent living space, with accommodation comprising a welcoming hallway, a large lounge and dining room, a modern kitchen and a spacious conservatory leading to the rear garden. Upstairs, there are three well proportioned bedrooms, a modern bathroom and a landing which gives access to a spacious loft which could give further extension potential (subject to planning consents). Outside, to the front, there is off street parking whilst to the rear, there is a lovely private garden and a very spacious garage measuring 19 x 17ft, which could make a superb office, gym or garden room. This must be viewed!
Ellesmere Road is well located for many good local schools including Cardinal Wiseman and is just a short walk from Greenford Broadway’s shops, restaurants, cafe’s and bus links serving the surrounding areas.
To arrange your appointment to view, please call Rolfe East today!
Contact Rolfe East Northfields Sales today...







