Carlyle Road, Ealing, W5





Key features
- Four bedroom family house
- Chain free sale
- Fully refurbished
- Close to tube stations
- South facing rear garden
- Off street parking
- Two reception rooms and conservatory
- Brand new kitchen and bathrooms
- Large out building
- Semi detached freehold.
Property details
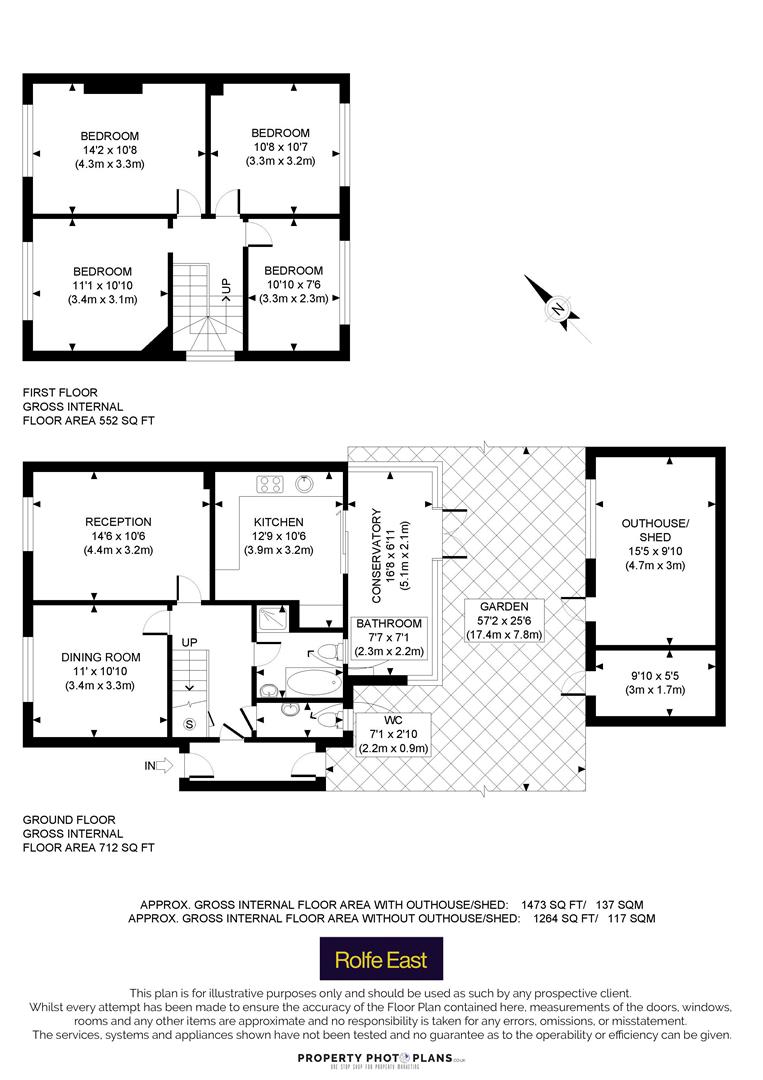
A very well located and superbly presented four bedroom family home, boasting larger than average room sizes (and with potential to extend further still) and brought to the market without any onward chain.
This spacious family home has been fully refurbished and offers plenty of living space, with accommodation comprising a welcoming hallway, two spacious reception rooms, a huge 16ft conservatory and a lovely, brand new fitted kitchen/breakfast room. There is also a downstairs bathroom and a second WC. Upstairs, there are four well proportioned bedrooms, all of which could have a double bed and a light and bright landing with access to a spacious loft. Outside, there is a front garden which is also off street car parking, and a lovely south facing private rear garden which also has a large shed/outhouse – which with some work, could be a stunning garden room, office or gym, making this property a truly lovely family home.
Carlyle Road is very well located for the local amenities of Northfields and South Ealing and is just half a mile from both underground stations (Piccadilly Line) giving fast access into Central London and out to Heathrow. The property is well positioned for some of the area’s best and most sought after schools including Little Ealing Primary and Ealing Fields. It also benefits from being nearby to the beautiful open spaces of Blondin and Lammas Parks, Ealing Broadway’s shopping centre, multitude of restaurants and its station (with overground services to Paddington and its Central, District and the new Elizabeth line services). Brentford town centre and station to London Waterloo is also within easy reach as are the A4/M4 road links and bus routes serving Kew, Richmond and Kingston.
Contact Rolfe East Northfields Sales today...








