Argyle Road, Ealing, W13
Offers In Excess Of £450,000





1
1
1
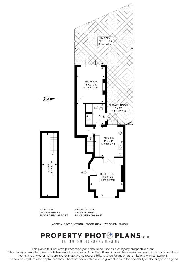
Key features
- Large one bedroom ground floor flat
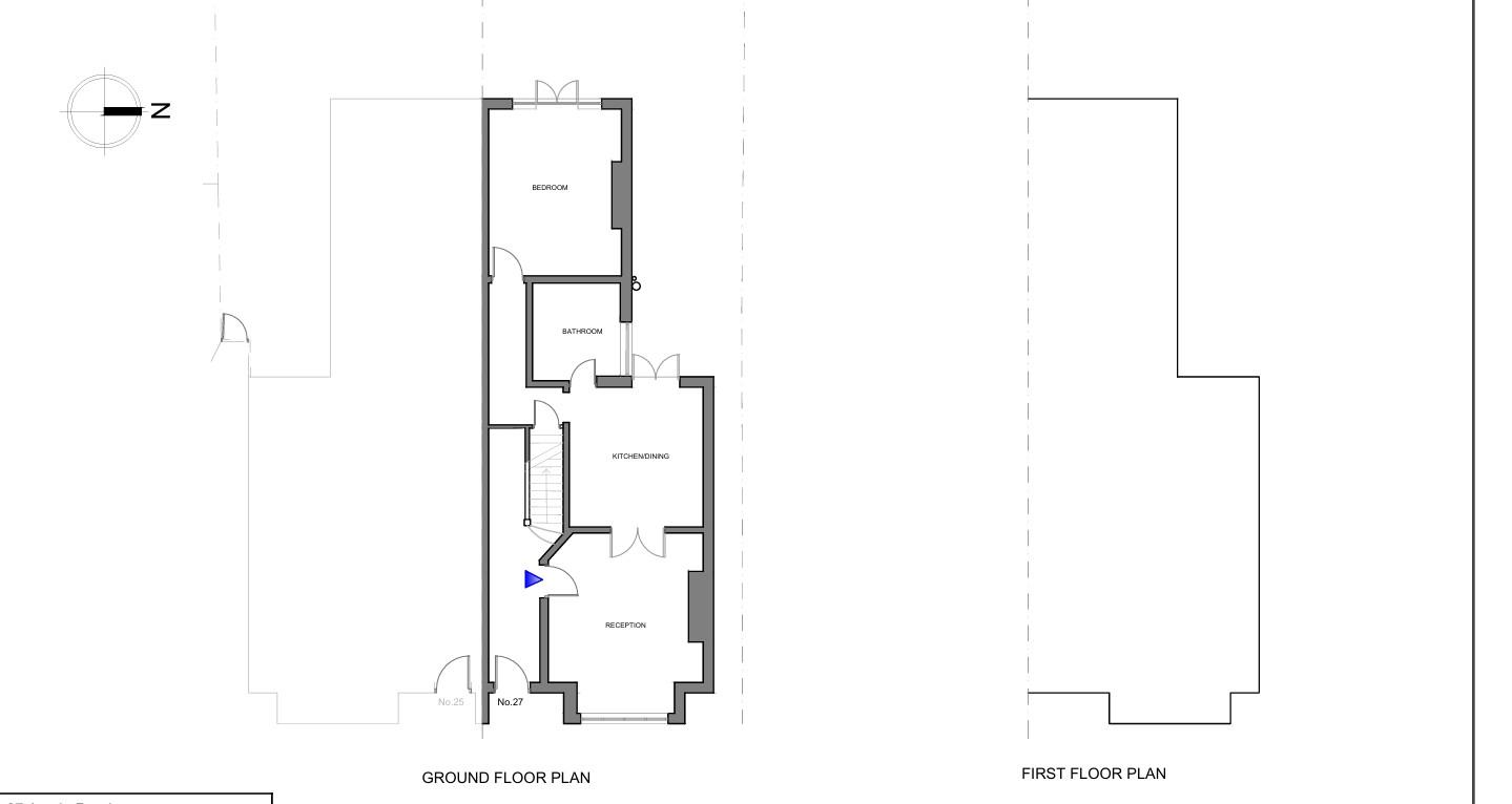
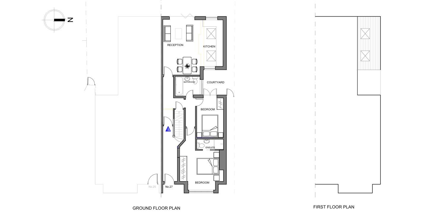
- Planning permission to extend
- Large private rear garden with decking
- Basement which could be ideal for stoage
- Two minutes walk to West Ealing station
- No upper chain and vacant possession
- Off street parking for one car
- EPC rating: C / council tax band: D
Property details
With a large private rear garden and planning permission to extend, this larger than average one bedroom ground floor flat is offered for sale with no upper chain and with the benefit of off street parking. A real feature of the current layout is the through reception/kitchen space which has direct garden access and the basement area which could be great storage. The property is perfectly positioned just two minutes walk to West Ealing Elizabeth Line Station.
Interested in this property?
Contact Rolfe East Ealing Sales today...
Contact Rolfe East Ealing Sales today...

Barry Kearney
Ealing Sales
020 8567 2242Email us18-19 The Mall, Ealing, W5 2PJHawke Financial Services
Use the map above to explore the neighbourhood around Argyle Road, Ealing, W13
Latest properties for sale
Arrange a viewing
Call our branch today on 020 8567 2242 or use the form below to request a viewing of this property.








