Valetta Road, London, W3





Key features
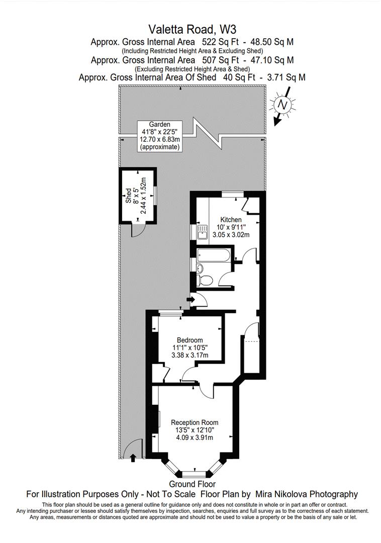
- Ground Floor Apartment
- Private Garden
- One Double Bedroom
- Ample Storage Space
- High Ceilings
- Unfurnished
Property details
A well presented one bedroom garden flat located perfectly for Askew Road and access into Stamford Brook, Turnham Green and Hammersmith.
The property comprises of a double bedroom with storage, a family bathroom, a separate kitchen and a spacious reception room. The property further boasts high ceilings throughout, ample storage space and a private rear garden.
Valetta Road is a tree lined road located just a short walk from the green spaces of Wendell Park, Stamford Brook Common and Acton Park. Nearby transport links include Stamford Brook station and Turnham Green station and the over ground line at Acton Central, and by car the A40 is a short drive away. Please call Rolfe East to arrange a viewing on 020 8993 7755.
Contact Rolfe East Acton Lettings today...







