Uxbridge Road, Acton, W3





Key features
- Former Doctor surgery
- Off street parking for 6 cars
- New Lease
- 10 minutes walk to Ealing Common Station
Property details
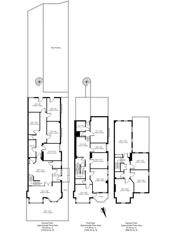
Commercial building to rent with off-street parking for 6 cars.
Situated on the south side of Uxbridge Road, this 3,850 sq. ft. commercial premises offers excellent accessibility, located within a 10-minute walk of Ealing Common Station & Acton Town Station, also benefiting from off-street parking for 6 cars to the rear of the property, providing approximately 1800sqft of rear outside space.
The property sits between Ealing Broadway and Acton, making it well-connected to surrounding areas.
Previously operating as a doctor’s surgery, the property is configured with multiple rooms and ancillary spaces, making it well-suited for a range of occupiers.
The property falls under Class E (formerly D1), allowing flexibility for various uses, including healthcare, medical, dental, physiotherapy, or other professional service uses.
Available by way of a new lease. For further details, contact Rolfe East.
Contact Rolfe East Commercial today...



























