Portland Business Centre, Datchet, SL3
£450,000





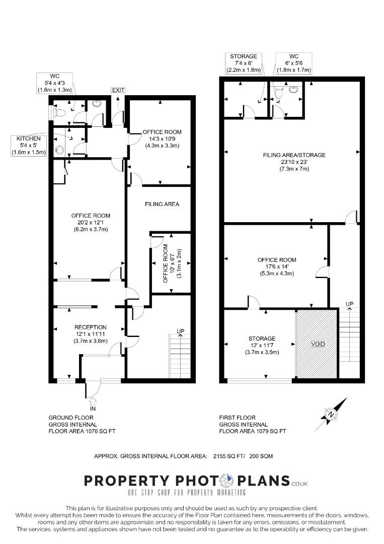
Floor planBrochure
Key features
- Vacant Possesion
- 3 Designated Car Spaces
- Freehold Opportunity
- Superb Location
Property details
A rarely available freehold opportunity with this end of row office / light industrial unit offering over 2000sq ft of usable space including the mezzanine level, comes with 3 parking spaces and is offered with vacant possession.
Situated on this designated light industrial site by Datchet Railway Station, it has great access for deliveries and transport links into London and the west.
Please call Rolfe East for viewings by appointment only.
Interested in this property?
Contact Rolfe East Commercial today...
Contact Rolfe East Commercial today...

Max Rolfe
Commercial
020 8566 0288Email us18-19 The Mall, Ealing, W5 2PJHawke Financial Services
Use the map above to explore the neighbourhood around Portland Business Centre, Datchet, SL3
Arrange a viewing
Call our branch today on 020 8566 0288 or use the form below to request a viewing of this property.









