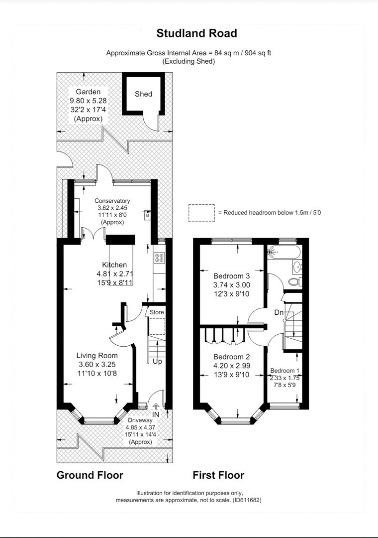
Studland Road, Hanwell, W7
Guide Price £730,000





3
1
1
Key features
- Three good size bedrooms
- Off street parking
- Potential to extend (STPP)
- Ideal for Hanwell (Crossrail) & Castle Bar station
- Council Tax Band D
Property details
A three bedroom semi-detached family home with an abundance of potential.
* Three good size bedrooms
* Open plan kitchen
* Spacious reception room
* Luxury family bathroom
* Off street parking
* Close to Brent Valley Golf course
* Conservatory
* Private garage
* Great schools
* Solid wood flooring & neutral décor
* Potential to extend (STPP)
Ideal for Hanwell (Crossrail) and Castle Bar (GWR) stations
The popular Bunny Park, local shops, good bus routes and excellent road networks close by.
Interested in this property?
Contact Rolfe East Northfields Sales today...
Contact Rolfe East Northfields Sales today...

Steve Moran
Northfields Sales
020 8579 1111Email us289 Northfield Avenue, Ealing, W5 4XBHawke Financial Services
Use the map above to explore the neighbourhood around Studland Road, Hanwell, W7
Latest properties for sale
Arrange a viewing
Call our branch today on 020 8579 1111 or use the form below to request a viewing of this property.









