Oliver Close, Chiswick, W4





Key features
- End of terrace
- Three/four bedrooms (With use of the garage being converted)
- Off street parking
- Highly rated schooling options close by
- Great transport links and easy access in and out of London
- River Thames closeby
- Potential to further extend STPP
- Large rear garden
- Located in the highly sought after Strand on the Green,
Property details
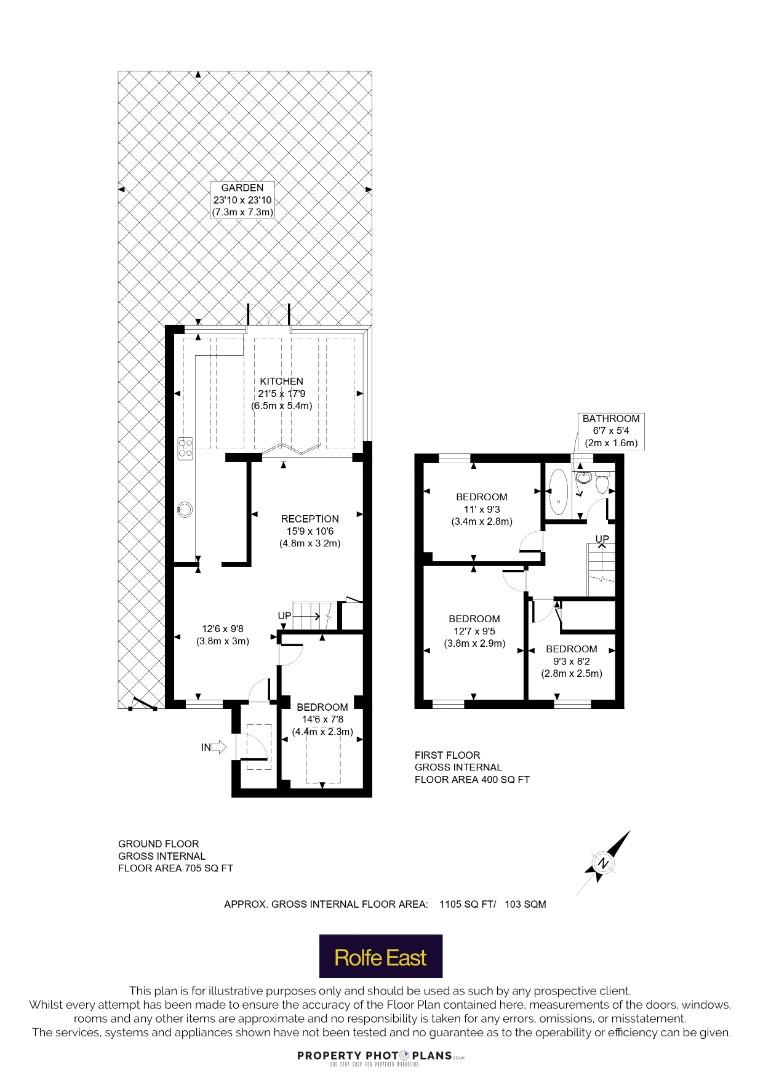
A well-presented three/four-bedroom end-of-terrace family home, tucked away within a quiet cul-de-sac, in the highly sought-after Strand on the Green.
The property offers a warm and welcoming feel, beginning with a spacious entrance hall that leads through to both the kitchen/dining area and the reception room. The reception space is ideal for entertaining while also offering the flexibility to be closed off for privacy. To the front, the home benefits from off-street parking, and the garage has been thoughtfully converted into an additional bedroom, which could also serve as a home office. A practical front porch has also been added, enhancing the functionality of the layout.
The first floor comprises three well-proportioned double bedrooms and a family bathroom. There is further scope to extend the property to the front, subject to the necessary planning permissions.
Oliver Close is set within a peaceful residential enclave in the heart of Chiswick, W4. The area is particularly popular with families, thanks to its highly regarded local schools and the lively village atmosphere created by an excellent selection of shops, cafés, and restaurants along Chiswick High Road and in nearby Strand on the Green,. Residents benefit from outstanding transport connections, with Chiswick and Gunnersbury stations offering swift access to central London, alongside convenient routes via the A4/M4 to Heathrow and the west. With Chiswick House & Gardens and the River Thames close at hand, Oliver Close offers an exceptional blend of connectivity and community.
Contact Rolfe East Acton Sales today...










