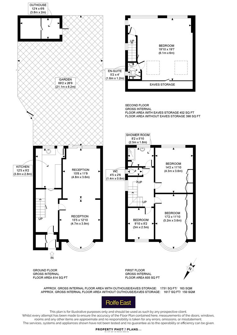
Bowes Road, Acton, W3





Key features
- Semi detached
- Four bedrooms
- Off street parking
- Large south facing garden, with Swimming pool
- Scope to further extend and add your own stamp
- Close to transport links
- Solar panels
- No chain
Property details
A four bedroom semi-detached house situated in a superb residential address in Acton, with further scope to create your ideal family home. The property boasts a loft extension, plenty of living space – Circa 1700 sq ft, two bathrooms, solar panels, a large south facing rear garden including a swimming pool, off street parking to the rear and an outbuilding.
The house is within walking distance of a great selection of transport links including East Acton Tube (Central line) and Acton Central Station (Overground). Nearby are some excellent schooling options, along with the large green open spaces.
The ever trendy Churchfield Road and Askew road are close by with a selection of artisan bakeries, coffee shops and gastro-pubs are located a short distance away. There is also easy access to the A40 trunk road into central London and Heathrow airport. CHAIN FREE!
Contact Rolfe East Acton Sales today...








